Luxury Condo Living
Offered at $3,398,000.00
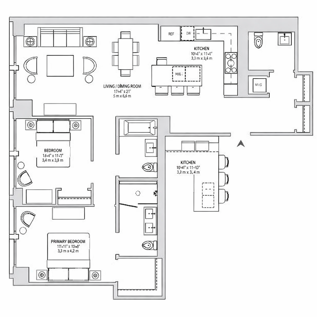
Residence N12A at 77 Charlton Street is a rare SoHo luxury condo offering the scale, light, and refinement typically reserved for much larger homes within a full-service new development in SoHo. Perfectly proportioned and impeccably finished, this approximately 1,400-square-foot, triple-mint two-bedroom, two-and-a-half-bath luxury condominium in Manhattan has been thoughtfully upgraded beyond the original new-development offering, resulting in a truly bespoke living experience.
With soaring 12-foot ceilings and expansive floor-to-ceiling windows, natural light fills the residence throughout the day, creating an atmosphere that is airy, serene, and unmistakably elevated. Oversized windows frame open city views, allowing sunlight to move effortlessly through the home, while the scale and ceiling heights give the space an expansive, sophisticated presence.
The layout flows effortlessly, offering generous entertaining spaces, excellent bedroom separation, and abundant storage—an increasingly rare combination in downtown Manhattan. The living and dining areas provide remarkable flexibility, easily accommodating both intimate gatherings and larger-scale entertaining, while the bedrooms are generously sized. The primary suite serves as a private retreat, complete with a spa-like bath and exceptional storage, completing a triple-mint condo in NYC that feels refined, functional, and quietly luxurious.





























